青森県十和田市の不動産、賃貸アパート、土地、建物情報は、株式会社 十和田宅建メイトで!!

| 取引種目 | 売買建物 | 問合せNo | 取引様態 | 仲介 | |
|---|---|---|---|---|---|
| コメント | 成約済 | ||||
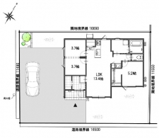
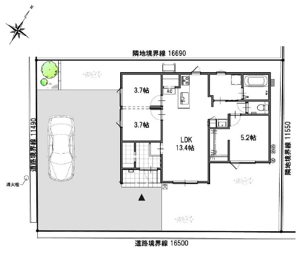
| 所在地 | 十和田市西一番町 平屋建て
|
||||
| 価 格 | 2445万円 | ||||
| 間取り | 3LDK | ||||
| 交 通 | 七戸十和田駅 車20分 | ||||
| 土地面積 | 119.33u | 他、私道面積 | |
|---|---|---|---|
| 建物構造 | 平屋建て 2×4工法 | 建物面積 | 68.24u |
| 間取内訳 | 3LDK | ||
| 接道状況 | 南西11m 、 南東5.9m | ||
| 築年月日 | 2025年9月 | 現 況 | 完成 |
| 引渡し時期 | 即時 | 駐車場 | 3台可 |
| 土地権利 | 所有権 | 地 目 | 宅地 |
| 都市計画 | 非線引区域 | 用途地域 | 第一種住居地域 |
| 建ペイ率(%) | 70% | 容積率(%) | 200% |
| 学区(小) | 北園小学校区 | 学区(中) | 三本木中学校区 |
| ガ ス | 個別プロパンガス | トイレ | 温水洗浄暖房便座 |
| 備 考 | ☆ご成約で、商品券プレゼント! ☆十和田市移住補助金無料申請中!(要件あり) | ||





















